
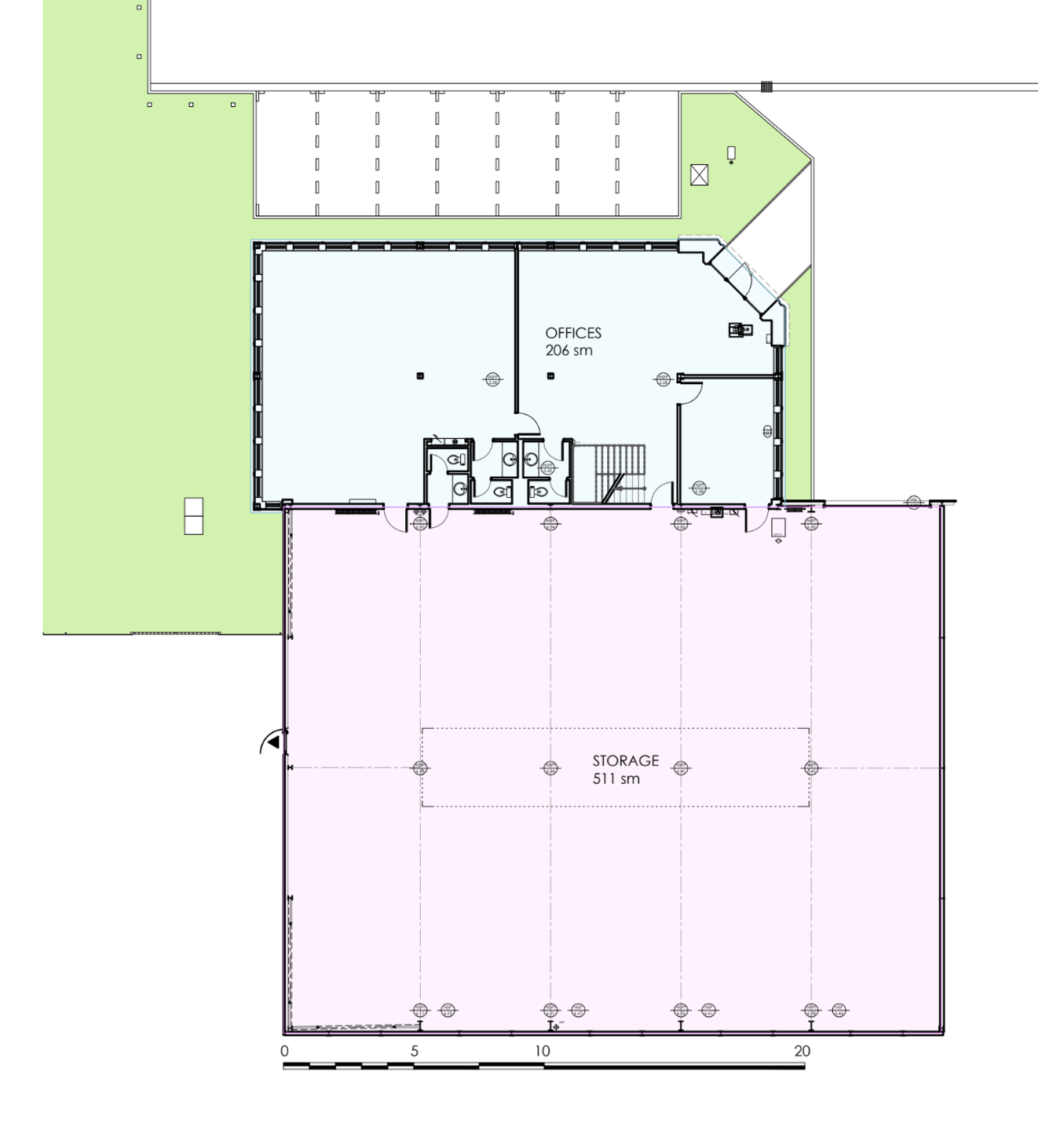
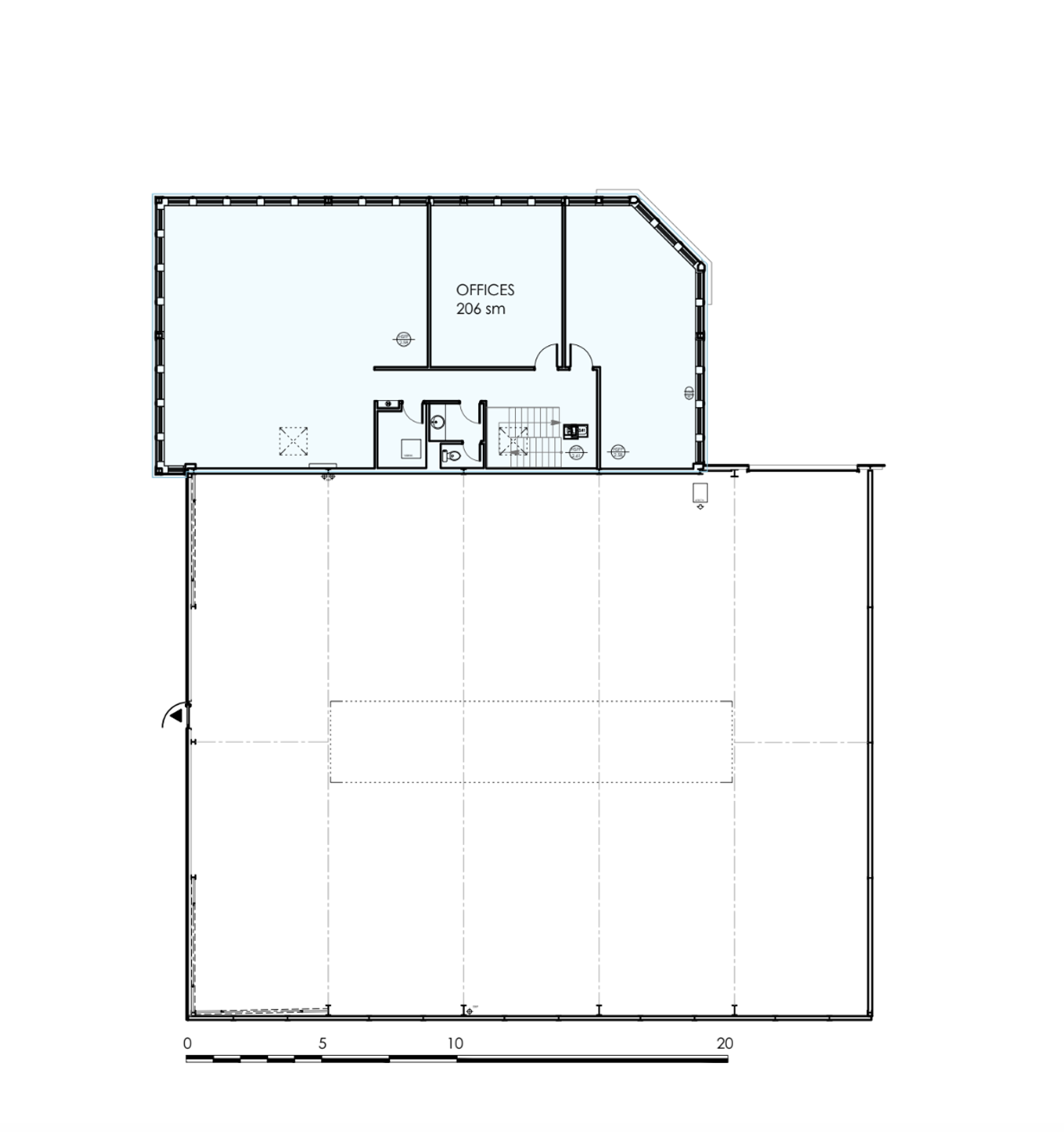
ARI HOME vous propose cet espace professionnel idéalement situé dans une zone industrielle à proximité immédiate de l’aéroport de Zaventem. Le bien se compose d’un entrepôt de 510 m² , de bureaux répartis sur deux étages, totalisant plus de 400 m² et vous bénéficiez également de places de parking privées. Disponible à partir du 01/03/2025. Pour organiser une visite ou obtenir davantage d’informations, n’hésitez pas à nous contacter.
ARI HOME biedt u deze professionele ruimte aan, ideaal gelegen in een industriële zone op een steenworp afstand van de luchthaven van Zaventem. Het pand bestaat uit: een magazijn van 510 m², kantoren verdeeld over twee verdiepingen, met een totale oppervlakte van meer dan 400 m². U beschikt ook over privéparkeerplaatsen. Beschikbaar vanaf 01/03/2025. Neem gerust contact met ons op om een bezoek te regelen of voor meer informatie.
Adresse :
Weihoek 3 - 1930 Zaventem
Référence | 7034367 |
---|---|
Catégorie | Bureaux |
Garage | Oui |
Parking | Oui |
Surface habitable | 923 m² |
Surface du terrain | 1000 m² |
Disponibilité | 01/03/2025 |
Année de construction | 2015 |
---|---|
Nombre de garage | 1 |
Parking intérieur | Oui |
Parking extérieur | Oui |
Nombre de sdd | 0 |
Type de toit | toit plat |
Etage | 0 |
---|---|
Nombre d'étages | 0 |
Accès handicapés | Non |
---|---|
Chauffage (ind/coll) (type (ind/coll)) | individuel |
Nbre de toilette(s) (nombre) | 4 |
Ascenseur | Non |
Double vitrage | Oui |
Installation pour câblage | Oui |
Chauffage (type) | gaz (chau. centr.) |
Type de cuisine | non-équipée |
Surface bâtie (surf. bât. princ.) | 719 |
---|---|
Bureaux (surface) | 412 m² |
Précompte immobilier (montant) | 6383 € |
---|
Charges locataire (montant) | 400 € |
---|---|
Loué | Oui |
Modalités de charges (valeur) | forfaitaires mensuelles |
Revenu cad. indexé (montant) | 9000 € |
---|
Contrôle d'accès | Oui |
---|---|
Sécurité | Oui |
Alarme | Oui |
Servitude | Non |
---|---|
Jugement en cours | Non |
Permis de bâtir | Oui |
Permis de lotir | Oui |
Destination bâtiment (type) | entrepôt |
Droit de préemption | Non |
Affectation urbanistique | zone industrielle |
Intimation en justice | Non |
Type d'intimation | pas de correction juridique ou mesure administrative imposée |
Égouts | Non |
---|---|
Électricité | Oui |
Gaz | Oui |
Câbles téléphoniques | Oui |
Eau | Oui |
Châssis (type) | pvc |
---|
Type d'environnement | central |
---|---|
Type d'environnement 2 | industriel |
Exposition de la façade avant | ouest |
Risque d'inondation (type innondation) | pas situé en zone inondable |
Type de zone inondable | zone innondable délimitée |
Risque d'inondation 2023 (type innondation) | Classe A (aucune chance) |
G-score (valeur) | A |
P-score (valeur) | A |
Zone de signal | Oui |
Type de revêtement de sol | béton |
---|
Magasins | Oui |
---|---|
Ecoles | Oui |
Transports en commun | Oui |
Centre-ville | Oui |
Centre sportif | Oui |
Autoroute | Oui |
Certificat d'électricité (oui/non) | oui, conforme |
---|
Label PEB (classe) | A |
---|---|
PEB E-SPEC (kwh/m²/an) | 1 |
Emission CO2 (émission CO2) | 1 |
PEB code unique | 1 |